Vânzare Casă Nouă – Direct Proprietar – Cumpăna
- 98.500,00€
- 98.500,00€
Descriere
🏡 Vânzare Casă Nouă – Direct Proprietar – Cumpăna
📍 Zonă înaltă, fără risc de inundații | Stradă asfaltată | Teren generos | Utilităti
💰 Preț: 98.500 € | Comision 0%
📞 Contact direct: 0740 664 364
🔹 Descriere generală:
Proprietate ideală pentru o familie care caută spațiu și aer curat. Situată într-o zonă ferită de pericole naturale, această casă oferă cadrul perfect pentru un trai confortabil, în mijlocul naturii, dar aproape de oraș.
🏠 Detalii tehnice & compartimentare:
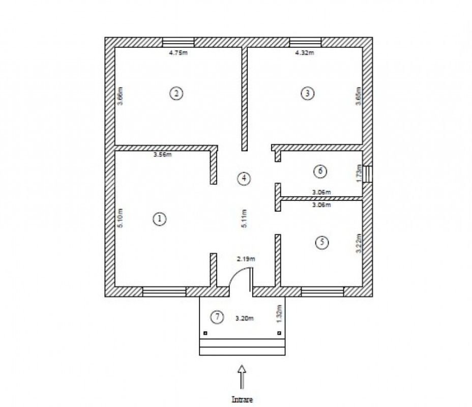
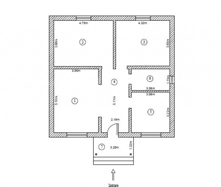
• Suprafață construită: 102 mp
• Teren: 495 mp in proprietate | Front stradal: 16 m
• Construcție solidă din BCA si beton armat, izolație exterioară, tencuială decorativă
• Acoperiș din tablă tip Lindab
• Ferestre termopan
• 3 camere spațioase, bucătărie separată, baie, hol generos, terasă
• Pod înalt (2.70 m) – ideal pentru mansardare (spațiu suplimentar locuibil)
• Locuri de parcare în curte
⚙️ Stadiu construcție & utilități:
• Casă finalizată la exterior
• Interior în stadiu “la roșu” – perfect pentru personalizare după gustul noului proprietar
• Branșamente existente: apă, curent electric, canalizare
• Gaze naturale la poartă – ușor de conectat
📜 Situație juridică:
• Teren cu cadastru actualizat
• Casă intabulată
• Toate actele pregătite pentru vânzare
🎯 Avantaje cheie:
✅ Acces facil, stradă asfaltată
✅ Toate utilitățile
✅ Ideală pentru mansardare – extindere facilă
✅ Proiect optimizat pentru trai modern
📞 Programează o vizionare: 0740 664 364
✨ Casa cu potențial real de personalizare!
#CasaCumpana #VanzareCasa #ImobiliareConstanta #InvestitieImobiliara #0Comision #CasaNoua #ProprietarDirect #CasaDeVanzare #Cumpana
Prezentare generală
- case-vile
- 2
- 1
- m²
- tv
Adresă
Deschideți pe Google MapsScorului de mers pe jos
informații de contact
Vizualizare anunțuriCalculatorului de credite ipotecare
- Acont
- Suma împrumutului
- Plată lunară a ipotecii
- Impozit pe proprietate
- Asigurare de locuință
- PMI
- Taxe lunare ale asociației de proprietari
Anunțuri similare
Casă 3 camere I 1250 mp teren I Porumbacu de jos-sat Colun
- 159.000,00€
🏡Grand Mobilis va propune spre vânzare un duplex modern
- 199.000,00€
Duplex Spațios, 135mp | 4 Camere | | Zonă Kaufland | Dumbravita
- 267.000,00€




