Vanzare apartament 4 camere Lujerului
- 214.999,00€
Descriere
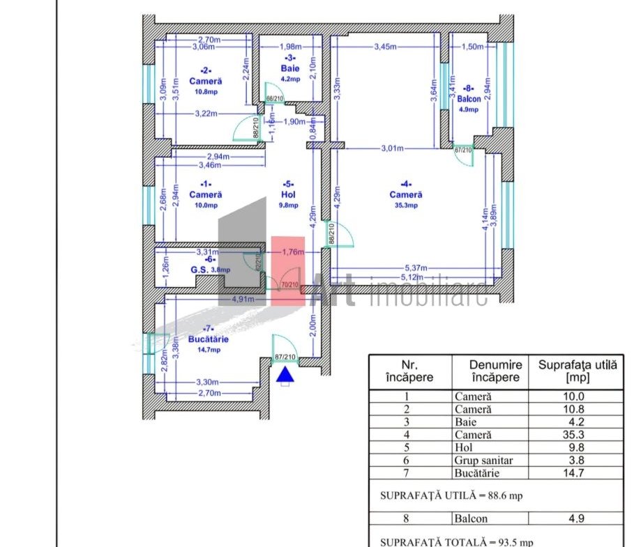
Oferin spre vanzare apartament de 4 camere cu o suprafata de 93,50 mp. Constructia a fost finalizata in 1994, si are o compartimentare decomandata. Apartamentul se afla la etajul 3, oferind o priveliste frumoasa asupra orasului, cu verere est si vest. Apartamentul este recent renovat, finisajele sunt de calitate, bloc anvelopat.
Locatia este excelenta, in apropiere de statii de autobuz, tramvai ( 41 in fata blocului) si metrou Lujerului la 250 m, facilitand accesul rapid in oras. In jurul apartamentului gasesti restaurante, piata, magazine si centre de sport, scola si gradinita cu program prelungit la 150 m. Parcurile si zonele verzi sunt la o distanta mica, ideale pentru petrecerea timpului liber (parcul Liniei la 300 m). Exista posibilitatea de a instala centrala de apartament teava de gaze ( diferita de cea comuna a blocului) este in fata usii.
Prezentare generală
- BDC-3035903
- apartamente
- 4
- 2
- m²
Adresă
Deschideți pe Google MapsScorului de mers pe jos
informații de contact
Vizualizare anunțuriCalculatorului de credite ipotecare
-
Acont
-
Suma împrumutului
-
Plată lunară a ipotecii
-
Impozit pe proprietate
-
Asigurare de locuință
-
PMI
-
Taxe lunare ale asociației de proprietari
Anunțuri similare
Apartament cu 3 camere zona Sagului
- 74.900,00€
Apartament 2 Camere | Decomandat | Loc de parcare | O.Goga
- 90.000,00€
Apartament cu 2 camere si loc de parcare subteran
- 119.000,00€
- Agent 11200










